
SHERIDAN — For Stefan Amraly, Sheridan was originally “only a stop” on his six-month tour of Wyoming — an act of due diligence to look into everywhere his company could call home.
But then a funny thing happened: the Principal Managing Director of the Falcon Motors Corporation fell in love.
“I didn’t know anything about Sheridan,” Amraly said. “I was a clean canvas. But when we spoke to the airport management, it became clear this was where we were supposed to be. I called my team at 11 p.m. — or 1 in the morning their time — and said ‘I think we’re going to make an effort in Sheridan.’”
In the year since that 1 a.m. phone call, Amraly and Falcon Motors have made Sheridan their home: designing their new facility and manufacturing process while also making strides in the design and development of their electric vehicles, including the Falcon 9X pickup truck.
Amraly has a bold vision for the future, including a six-building facility in Sheridan to be constructed by 2025, and a goal of producing 30,000 electric vehicles by 2026. But he also has a commitment to making his adopted community better through offering high-paying jobs while maintaining the small-town feel so many have grown to love.
“It is pure serendipity we found Sheridan, and it is a perfect fit for us as a company,” Amraly said. “In return, I hope we’re the perfect fit for this community.”
Amraly formed Falcon Motors — formerly known as the Falcon Car Corporation — in 2017 in response to a growing need for electric vehicles.
“With fuel costs and the affordability of vehicles the way they are, I truly believe electric vehicles will become the more competitively-priced vehicles in the near future,” Amraly said. “Even three years ago, that would have been unexpected.”
But the world doesn’t necessarily need another electric car, Amraly said. That’s why he turned his attention to developing unique electric vehicles like the 9x pickup truck, the EB-6 bus and the 1XT ATV.
Originally, the plan was to build Falcon’s facility in Connecticut, Amraly said. But it became clear that location was not the best fit.
“We did not feel Connecticut was necessarily the market for the vehicles we wanted to build, especially the pickup truck,” Amraly said. “I always had an interest out west, so we started our search.”
Eventually, Sheridan proved too enticing to resist, Amraly said. The company signed a 40-year lease with the county last year.
The 4.94 acres at the Sheridan County Airport Business Park was an ideal location based on its proximity to Interstate 90, rail services and aviation access with direct access to Denver International Airport, "which is essential for business travel," according to a press release from the company. But Amraly said he was equally impressed by the community’s work-life balance: something he wants to provide all his employees.
“Moving from the east coast, it took me a little while to get used to the Sheridan lifestyle, and I quickly learned that you don’t mess with hunting season around here,” Amraly said with a laugh. “But it is important to have a balanced approach to work and life. That’s what I want for my employees, and what I want for myself. And that’s what Sheridan provides.”
Amraly said the company expects to bring roughly 260 new jobs to Sheridan, and is hiring locally for as many as possible. Recently advertised jobs range from an office manager to a senior machinist.
“We are launching an aggressive hiring campaign in Sheridan, along with some hiring efforts in South Dakota and other neighboring states,” Amraly said. “The labor market in Sheridan is tight right now, and there are multiple reasons for that. But there needs to be a reason for people to want to stay here or move here, and I feel like we can be part of that reason.”
Speaking to The Sheridan Press last week, Sheridan County Commission chairman Lonnie Wright agreed Falcon could have a sizable impact on Sheridan’s workforce and economy.
“Anytime we can provide job opportunities that were not available before, that’s a win for our community,” Wright said. “And that’s what Falcon is doing.”
Since the lease with the county was approved last year, residents have occasionally expressed their concerns about the facility and how it could alter the quality of life in Sheridan. Amraly said he was dedicated to preserving Sheridan’s small-town atmosphere.
“That’s why Sheridan is not the end-all for us,” Amraly said. “We will produce some vehicles here, but it is impossible for us to meet our mass production plans for 2026 in this facility. That’s why we’ll have another facility for mass production somewhere else in the west. We want to maintain the smalltown feel here, and it is difficult to do that while producing larger numbers of vehicles.”
Amraly said the company is “very cognizant of the neighborhood around us” and is implementing things like a shift system that will prevent all 260 workers from leaving the facility simultaneously and causing a rush hour situation on local roads.
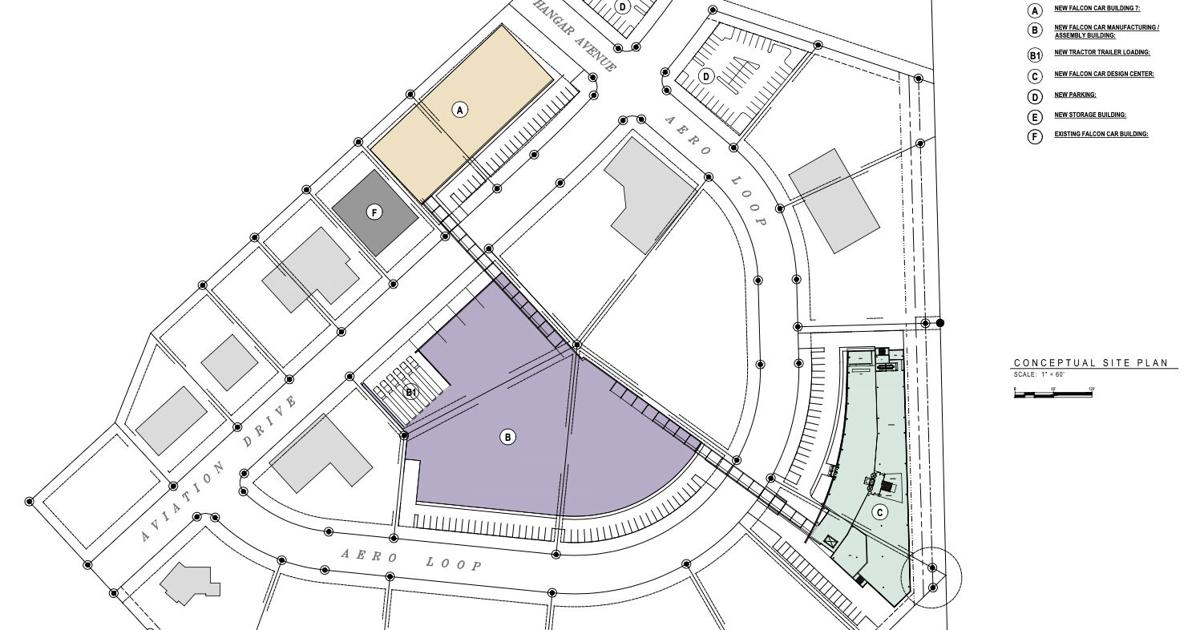
The finished Falcon facility is expected to include six buildings, including a manufacturing and assembly building, a design center and a storage facility, Amraly said, and the company hopes to break ground on several of the buildings later this year. The business holds a license to produce 2,999 vehicles beginning in model year 2023.
"electric" - Google News
April 30, 2022 at 03:00PM
https://ift.tt/K8nbgkR
Electric car manufacturer has big plans | Local News | thesheridanpress.com - The Sheridan Press
"electric" - Google News
https://ift.tt/ZMuf7KI
https://ift.tt/RfePNYh
Bagikan Berita Ini
0 Response to "Electric car manufacturer has big plans | Local News | thesheridanpress.com - The Sheridan Press"
Post a Comment